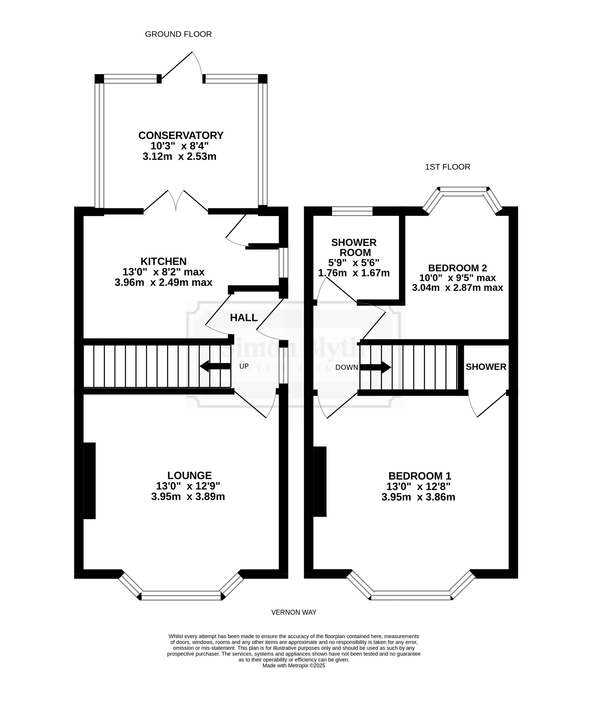
OFFERED TO THE MARKET WITH NO UPPER VENDOR CHAIN IS THIS WELL PROPORTIONED TWO BEDROOM SEMI DETACHED PROPERTY. IN THIS HIGHLY REGARDED AREA CLOSE TO LOCAL AMENITIES INCLUDING BARNSLEY HOSPITAL, BARNSLEY CENTER AND THE M1 MOTORWAY. The property briefly comprises; entrance hall, living room, kitchen and conservatory. To the first floor are two bedrooms, including shower room to bedroom one and the family bathroom. Outside, to the front is off street parking with low maintenance gardens to front and rear.
Entrance gained via composite door with opaque glass panels into entrance hall with uPVC doble glazed window to side and staircase rising to first floor. From here we gain entrance to the following rooms.
LIVING ROOMA spacious front facing reception room with ceiling light, central heating radiator, and uPVC double glazed window. The main focal point of the room being a gas fire sat in surround with wooden mantelpiece and hearth.
KITCHENThe kitchen itself has a range of wall and base units in a shaker style with contrasting laminate worktops over, tiled splashbacks and one and half bowl stainless steel sink with chrome mixer tap over. There is an integrated electric oven with four ring burner gas hob with extractor fan over and plumbing for a washing machine. The room has a ceiling light, coving to the ceiling, vinyl flooring, central heating radiator and uPVC double glazed window to the side. A cupboard also houses the properties boiler.
CONSERVATORYAccessed from the kitchen through a pair of French patio doors in wood with four panel inset in each. Having uPVC double glazed windows to three sides, wall mounted light, central heating radiator and uPVC double glazed door opens to the rear of the property.
FIRST FLOOR LANDINGFrom the entrance hallway a staircase rises to first floor landing with ceiling light and access to the following rooms.
BEDROOM ONEA spacious double bedroom with ceiling light, dado rail, central heating radiator and uPVC double glazed bay window to front.
EN SUITE SHOWERA shower enclosure with mains fed shower, ceiling light and extractor fan.
BEDROOM TWOA rear facing bedroom with ceiling light, central heating radiator and uPVC double glazed bay window overlooking the rear of the property.
SHOWER ROOMComprising of a three-piece suite in the form of; close coupled W.C, pedestal basin with chrome mixer tap over and shower enclosure with mains fed mixer shower within. The room has a ceiling light, part tiling to walls, tiled floor and obscure uPVC double glazed window to rear.
Warning: Attempt to read property "rating" on null in /srv/users/simon-blyth/apps/simon-blyth/public/wp-content/themes/simon-blyth/property.php on line 314
Warning: Attempt to read property "report_url" on null in /srv/users/simon-blyth/apps/simon-blyth/public/wp-content/themes/simon-blyth/property.php on line 315
Repayment calculator
Mortgage Advice Bureau works with Simon Blyth to provide their clients with expert mortgage and protection advice. Mortgage Advice Bureau has access to over 12,000 mortgages from 90+ lenders, so we can find the right mortgage to suit your individual needs. The expert advice we offer, combined with the volume of mortgages that we arrange, places us in a very strong position to ensure that our clients have access to the latest deals available and receive a first-class service. We will take care of everything and handle the whole application process, from explaining all your options and helping you select the right mortgage, to choosing the most suitable protection for you and your family.
Test
Borrowing amount calculator
Mortgage Advice Bureau works with Simon Blyth to provide their clients with expert mortgage and protection advice. Mortgage Advice Bureau has access to over 12,000 mortgages from 90+ lenders, so we can find the right mortgage to suit your individual needs. The expert advice we offer, combined with the volume of mortgages that we arrange, places us in a very strong position to ensure that our clients have access to the latest deals available and receive a first-class service. We will take care of everything and handle the whole application process, from explaining all your options and helping you select the right mortgage, to choosing the most suitable protection for you and your family.
How much can I borrow?
Use our mortgage borrowing calculator and discover how much money you could borrow. The calculator is free and easy to use, simply enter a few details to get an estimate of how much you could borrow. Please note this is only an estimate and can vary depending on the lender and your personal circumstances. To get a more accurate quote, we recommend speaking to one of our advisers who will be more than happy to help you.
Use our calculator below
