A RARE OPPORTUNITY ARISES TO PURCHASE A FANTASTIC COMMERCIAL INVESTMENT IN THE CENTRE OF HOLMFIRTH. ROTCHER HOUSE IS THE CURRENT HOME TO OSCARS WINE BAR, AN ESTABLISHED HOLMFIRTH INSTITUTION, OFFERING THE PURCHASER A SECURE INVESTMENT WITHIN AN ATTRACTIVE TWO STOREY, STONE BUILT, TOWN CENTRE PROPERTY.
The property is situated on the corner of Rotcher Road, Victoria Street and Hollowgate in the centre of Holmfirth. It offers a prominent location with nearby retailers including Sainsburys, Age UK, Lou & Joes Burger Co, Picturedrome and Magic rock Tap. There is high level of footfall and passing traffic and set in a strategic position in the centre of the town.
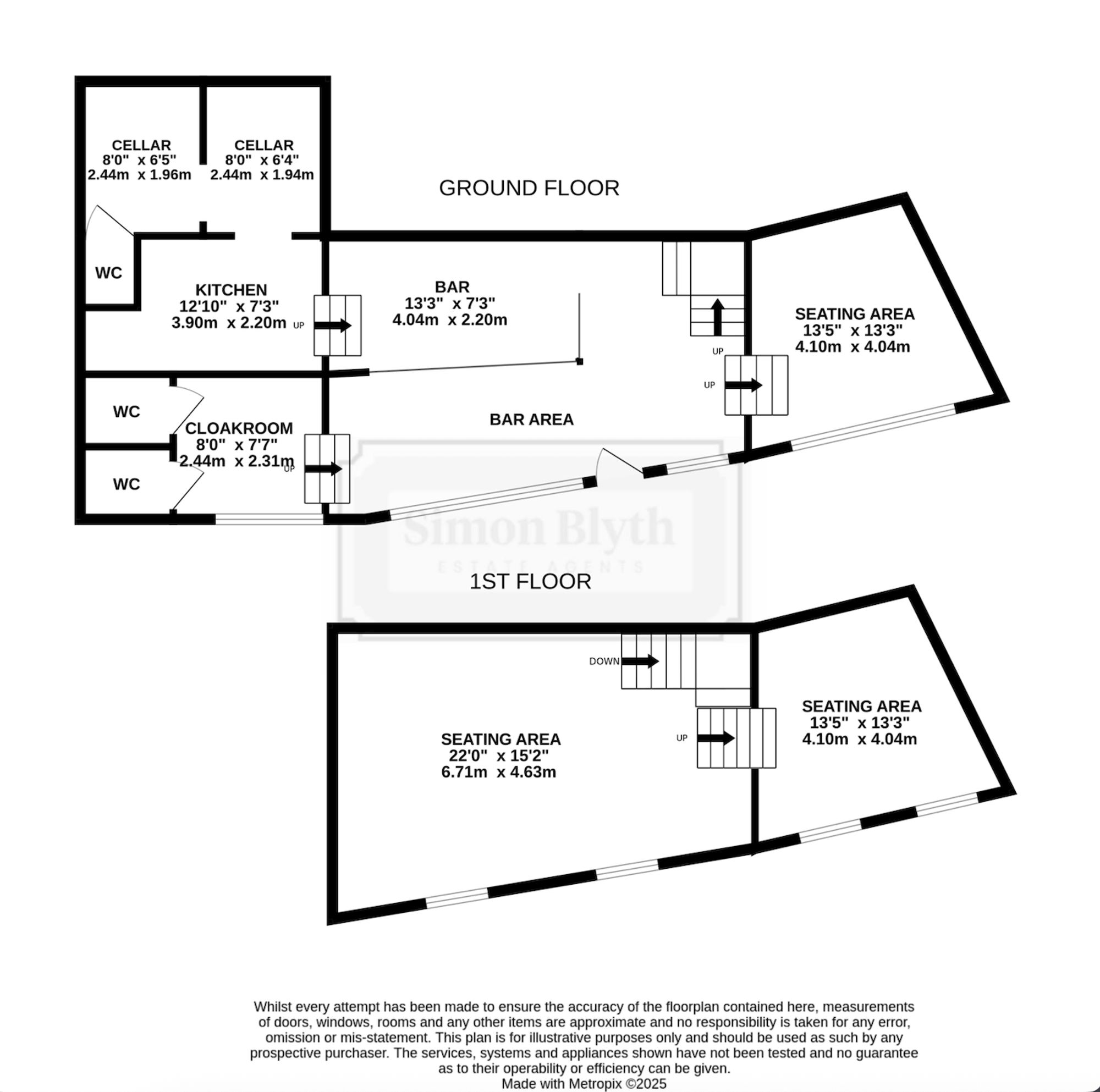
PROPERTYA two storey stone built property which is accessed off Rotcher Road. At ground floor level there is a good size bar area and raised seating area. There is a cloakroom area and two WCs, and accessed off the bar area is a good size kitchen, two stores and a staff WC. At first floor level there is a large open plan seating area and a further raised seating area. The property is in excellent condition and is fitted out to a high standard. It has a gross internal area of 1,281 sq ft (119.01 sq m).
LEASEThe property is let on a Full Repairing and Insuring lease from 18th October 2021 for 10 years at a current passing rent of £22,000 per annum. There is a rent review due on 19th October 2027. The Tenant has an option to break om 18th October 2026 subject to 6 month notice.
BUSINESS RATESThe tenant is responsible for payment of the business rates. The Tenant has responsibility for their own utility bills.
LEGAL FEESEach party is responsible for their own legal fees incurred in the transaction.
VATVAT is not applicable on the sale price.
VIEWINGSStrictly by appointment only.
Repayment calculator
Mortgage Advice Bureau works with Simon Blyth to provide their clients with expert mortgage and protection advice. Mortgage Advice Bureau has access to over 12,000 mortgages from 90+ lenders, so we can find the right mortgage to suit your individual needs. The expert advice we offer, combined with the volume of mortgages that we arrange, places us in a very strong position to ensure that our clients have access to the latest deals available and receive a first-class service. We will take care of everything and handle the whole application process, from explaining all your options and helping you select the right mortgage, to choosing the most suitable protection for you and your family.
Test
Borrowing amount calculator
Mortgage Advice Bureau works with Simon Blyth to provide their clients with expert mortgage and protection advice. Mortgage Advice Bureau has access to over 12,000 mortgages from 90+ lenders, so we can find the right mortgage to suit your individual needs. The expert advice we offer, combined with the volume of mortgages that we arrange, places us in a very strong position to ensure that our clients have access to the latest deals available and receive a first-class service. We will take care of everything and handle the whole application process, from explaining all your options and helping you select the right mortgage, to choosing the most suitable protection for you and your family.
How much can I borrow?
Use our mortgage borrowing calculator and discover how much money you could borrow. The calculator is free and easy to use, simply enter a few details to get an estimate of how much you could borrow. Please note this is only an estimate and can vary depending on the lender and your personal circumstances. To get a more accurate quote, we recommend speaking to one of our advisers who will be more than happy to help you.
Use our calculator below
