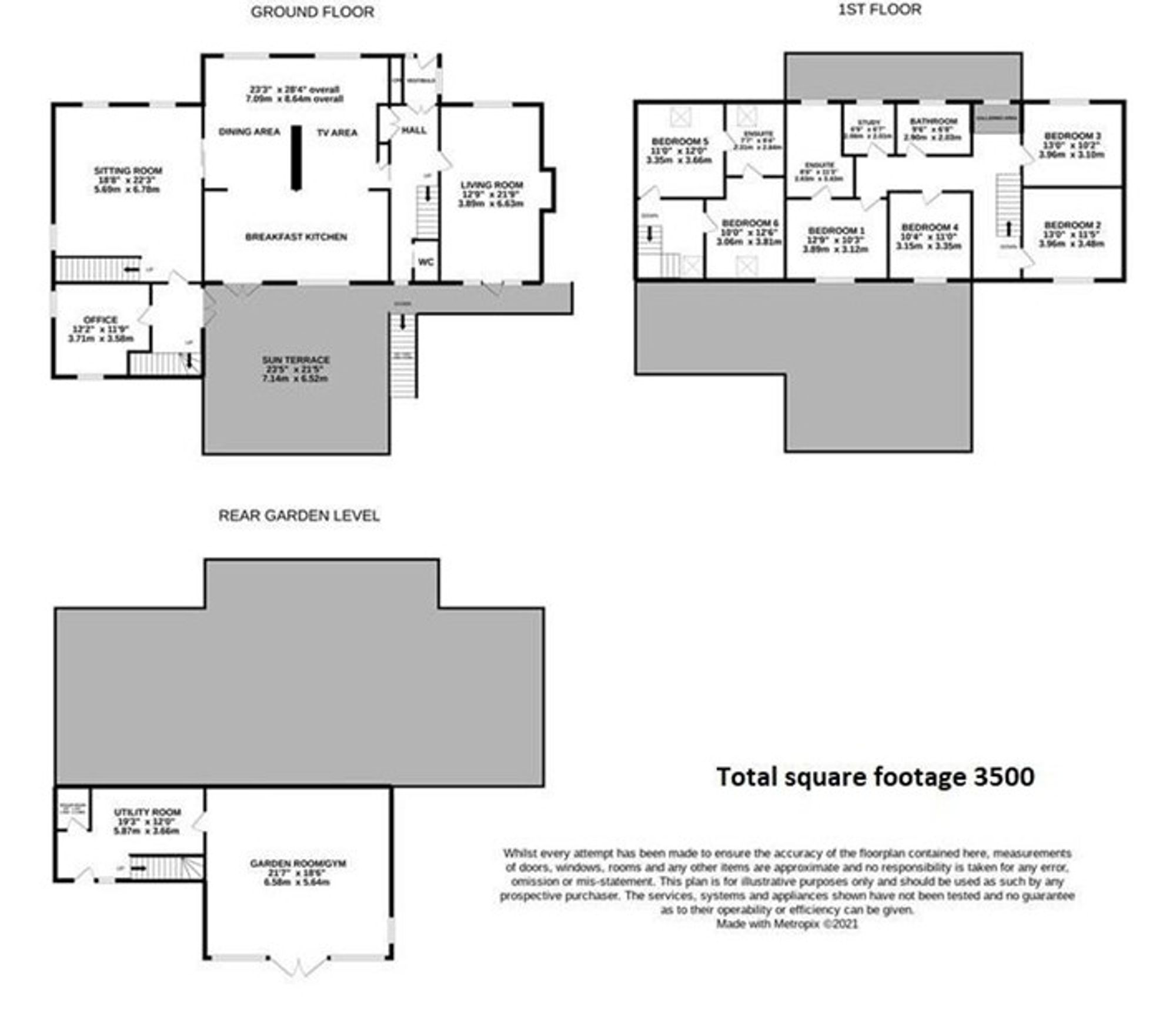
Tucked away and hidden from view within private well -screened established gardens is this stylish and beautifully-appointed modern six-bedroom detached family home.
Available with vacant possession, the property offers a generous amount of versatile accommodation with a number of rooms and having Italian fitted furniture. There are two large reception rooms, a wonderful open plan living/dining/TV area with a German fitted kitchen, and a host of integrated appliances. In addition, there is a fitted office, downstairs w.c., entrance vestibule, and a hallway with a glass-panelled staircase. At a lower level there is a utility room and gym, both with direct access to the rear garden. The first floor has four bedrooms with master en-suite, a study and a bathroom. The second staircase leads to two further bedrooms with Jack -and-Jill en-suite. There is off-road parking for a number of vehicles, and gardens to the side and rear with the rear having a large sun terrace, a level lawn, and offering a good degree of privacy. There is aluminium double glazing, a gas central heating, alarm, and CCTV.
Beechfield Road is part of an attractive tree -lined crescent with central private tennis and bowling club, and just a short drive from Junction 24 of the M62 motorway.
A composite door opens into the entrance vestibule. With aluminium sealed-unit double-glazed windows to either side of the door and to the side elevation. There are inset LED downlighters, tiled floor with underfloor heating and with Italian fitted furniture including cupboards and floor-to-ceiling cupboards. From here, there are twin-frosted glazed doors leading into the main entrance hall.
HALLWAYThis has inset LED downlighters, a small galleried area, tiled floor with underfloor heating, aluminium sealed-unit double-glazed window and a glass panelled open-tread staircase rising to the first floor. From the hallway, access can be gained to the rooms as follows:
DOWNSTAIRS W.C.5' 5" x 3' 3" (1.65m x 0.99m)
This has a sliding pocket door, aluminium sealed-unit double-glazed window, inset
LED downlighters, tiled floor with underfloor heating, vanity cupboard and fitted with a suite comprising of the following: a rectangular wash hand basin mounted on a timber plinth with wall-mounted Hans Grohe monobloc tap, and a wall-hung WC with concealed cistern.
28' 4" x 23' 3" (8.63m x 7.08m)
As the dimensions indicate this is a huge entertaining space split into three sections with aluminium sealed-unit double-glazed windows to the rear elevation with adjacent French doors. To the front elevation there are two aluminium sealed-unit double-glazed picture windows all of which fill this area with an abundance of natural light. There are numerous inset LED downlighters, numerous ceiling light points, concealed LED lighting, and tiled flooring with underfloor heating. Between the dining area and TV area there is a double ended fireplace with a liquid gas fire. To the TV area there is a recessed flat- screen Panasonic TV and sound bar. The kitchen is fitted with a stylish range of grey wood-effect handle-less base and wall cupboards. There are contrasting white gloss handle-less cupboards, and overlying granite worktops and splashbacks...
There is display shelving with LED back lighting, and an inset sink with Quooker chrome monobloc tap giving instant boiling water. There are a bank of Neff ovens including twin electric fan-assisted steam and combi ovens, together with two warming drawers There are twin integrated fridges, twin integrated freezers, integrated dishwasher and a large island unit which, once again, has granite worktops. There is an extended L-shaped timber-effect breakfast bar, extractor hood, Neff induction hob, AEG wok, pan drawers, a storage cupboard, waste bins and an urban cultivator beneath.
LIVING ROOM21' 9" x 12' 9" (6.63m x 3.89m)
A well-proportioned principal reception room with aluminium sealed-unit double-glazed windows to the front elevation and aluminium sealed-unit double-glazed windows to the rear elevation, with central door. These provide a lovely aspect over the property’s private and well-screened rear garden with views beyond over Grimescar Woods. There are inset LED downlighters, a central heating radiator and a recessed fireplace which has been utilised as a flat-screen TV placement with fitted Italian floating cupboards beneath.
23' 3" x 18' 8" (7.09m x 5.69m)
With aluminium sealed-unit double-glazed windows to both front and side elevations, there is tiled flooring, three central heating radiators, fitted Italian furniture including floor-to-ceiling cupboards, a floating storage unit and display shelving. To one side a staircase rises to bedrooms five and six, and a door gives access to the rear lobby.
With tiled flooring, a staircase to rear garden level, and aluminium double-glazed French doors giving access to the sun terrace. There are inset LED downlighters, and to one side a door leads to the office.
OFFICE12' 2" x 11' 9" (3.71m x 3.58m)
With dual-aspect aluminium sealed-unit double-glazed windows, and with the rear looking out onto Grimescar Woods. There is a ceiling light point, inset LED downlighters, central heating radiator, and having stylish Italian fitted furniture including floating drawers, cupboards, and book shelving.
19' 3" x 12' 0" (5.87m x 3.66m)
This has an aluminium sealed-unit double-glazed door giving access to the rear garden and adjacent window. There is a ceiling light point, fitted base and wall cupboards, a worktop with inset single drainer, stainless steel sink with chrome monobloc tap, undercounter space for washing machine and dishwasher. A boiler room houses a Worcester gas-fired central heating boiler and a water storage cylinder. At the far end of the utility room a door gives access to the garden room/gym.
21' 7" x 18' 6" (6.58m x 5.64m)
This has inset LED downlighters, numerous plug sockets, and grey timber-effect flooring. To the rear elevation there are two aluminium sealed-unit double-glazed picture windows which are floor-to-ceiling in height together with central French doors and a further window to the side elevation all of which flood this area with natural light.
With an aluminium sealed-unit double-glazed window to the rear elevation and views across to Grimescar Woods, there is a small galleried area and aluminium double-glazed window to the front elevation, inset LED downlighters, central heating radiator and glass panelled balustrade and LED lights to the skirting boards. From the landing, access can be gained to the following rooms:-
BEDROOM ONE12' 9" x 12' 3" (3.89m x 3.73m)
This double room is situated to the rear of the property and has an aluminium sealed-unit double-glazed window looking out across the garden with views beyond over Grimescar Woods. There are inset LED downlighters, a central heating radiator, a fitted bed head with display shelving to either side, two wall light points and fitted Italian furniture including a dressing table and shelving.
11' 3" x 8' 0" (3.43m x 2.44m)
Having inset LED downlighters, extractor fan, frosted aluminium double-glazed window, mirror-fronted vanity cupboards, tiled floor, part-tiled walls and chrome heated towel rail. The room is fitted with a suite comprising double-ended bath with tiled side panel and Hans Grohe tap with separate hand spray, Duravit wash
hand basin mounted on a plinth with chrome towel rail and Hans Grohe tap over, wall-hung WC with concealed cistern, and large tiled shower cubicle with glass door and fixed shower rose together with separate hand spray.
13' 0" x 11' 5" (3.96m x 3.48m)
A double room with aluminium double-glazed windows and enjoying a similar aspect to that of bedroom one. There are inset LED downlighters, two ceiling light points, central heating radiator, fitted bed head which spans one end of the room, and fitted Italian floor-to-ceiling wardrobes
13' 0" x 10' 2" (3.96m x 3.10m)
Again, a double room with an aluminium sealed-unit double-glazed window looking out to the front. There are inset LED downlighters, ceiling coving, central heating radiator, fitted display shelving, fitted desk with drawers, and Italian fitted floor-to-ceiling wardrobes.
11' 0" x 10' 4" (3.35m x 3.15m)
With an aluminium sealed-unit double-glazed window looking out across the rear garden with views across to Grimescar Woods. There are inset LED downlighters, ceiling coving, a ceiling light point, fitted shelving and Italian fitted floor-to-ceiling wardrobes.
6' 9" x 6' 7" (2.06m x 2.01m)
With ceiling light point, central heating radiator, and an aluminium sealed-unit double-glazed window.
6' 8" x 9' 6" (2.03m x 2.90m)
There is a frosted aluminium sealed-unit double-glazed window, inset LED downlighters, extractor fan, tiled floor, part-tiled walls, and mirror-fronted vanity unit. The bathroom is fitted with a Duravit suite comprising panelled bath with Hans Grohe tap and separate hand-spray, wash basin mounted on a timber plinth with Hans Grohe chrome tap over, wall-hung w.c. with concealed cistern, wall-hung urinal, and wet area with chrome shower fitting.
The remaining first floor accommodation is accessed from a staircase from the sitting room. This leads to a landing which has a Velux double-glazed window, and provides access to the following:-
BEDROOM FIVE12' 0" x 11' 0" (3.66m x 3.35m)
A double room with a central heating radiator, ceiling light point and Velux double-glazed window. To one side a door gives access to a Jack-and-Jill ensuite.
9' 4" x 7' 7" (2.85m x 2.31m)
This room has a Velux double-glazed window, ceiling light point and fitted with a shower, wash basin, and WC. It interconnects with bedroom six.
12' 6" x 10' 0" (3.81m x 3.05m)
With Velux double-glazed window, ceiling light point and central heating radiator.
CENTRAL HEATING- THE PROPERTY HAS A GAS CENTRAL HEATING SYSTEM DOUBLE GLAZING- THE PROPERTY HAS ALUMINIUM SEALED UNIT DOUBLE GLAZING SECURITY- THE PROPERTY HAS A SECURITY ALARM AND CCTV DIRECTIONS - Proceed out of Huddersfield up New North Road and on reaching the traffic lights continue straight ahead onto Edgerton Road. Continue until reaching the traffic lights by the Cavalry Arms public house. At the lights, turn right onto Birkby Road. Continue down the hill passing the Nuffield Hospital and then turn left onto Beechfield Road passing the private tennis and bowls club on the right-hand side where number 14a will be hidden from view in the top left-hand corner.
C
Repayment calculator
Mortgage Advice Bureau works with Simon Blyth to provide their clients with expert mortgage and protection advice. Mortgage Advice Bureau has access to over 12,000 mortgages from 90+ lenders, so we can find the right mortgage to suit your individual needs. The expert advice we offer, combined with the volume of mortgages that we arrange, places us in a very strong position to ensure that our clients have access to the latest deals available and receive a first-class service. We will take care of everything and handle the whole application process, from explaining all your options and helping you select the right mortgage, to choosing the most suitable protection for you and your family.
Test
Borrowing amount calculator
Mortgage Advice Bureau works with Simon Blyth to provide their clients with expert mortgage and protection advice. Mortgage Advice Bureau has access to over 12,000 mortgages from 90+ lenders, so we can find the right mortgage to suit your individual needs. The expert advice we offer, combined with the volume of mortgages that we arrange, places us in a very strong position to ensure that our clients have access to the latest deals available and receive a first-class service. We will take care of everything and handle the whole application process, from explaining all your options and helping you select the right mortgage, to choosing the most suitable protection for you and your family.
How much can I borrow?
Use our mortgage borrowing calculator and discover how much money you could borrow. The calculator is free and easy to use, simply enter a few details to get an estimate of how much you could borrow. Please note this is only an estimate and can vary depending on the lender and your personal circumstances. To get a more accurate quote, we recommend speaking to one of our advisers who will be more than happy to help you.
Use our calculator below
