IN A FABULOUS LOCATION, CLOSE TO HOLMFIRTH CENTRE, YET ENJOYING STUNNING VIEWS, THIS BEAUTIFUL SMALL HOLDING INCLUDES APPROXIMATELY 8 ACRES OF LAND, A FABULOUS RANGE OF FARM BUILDINGS (WITH CONSENT TO CREATE TWO HOUSES) AND A PARTICULARLY BEAUTIFUL FOUR-BEDROOM BARN/FARMHOUSE WITH DELIGHTFUL GARDENS AND A SUPERB INTERIOR. HAVING BEEN A MUCH-LOVED FAMILY HOME FOR MANY YEARS, HOLT FARM OFFERS A HUGE AMOUNT OF CHOICE, ENJOYS A FARM/EQUESTRIAN BASE, LIVES A FAMILY IN ONE OF THREE HOUSES AVAILABLE OR CREATE A SPECTACULAR HOUSE AND USE THE FARMHOUSE FOR RELATIVE. THE CHOICE TRULY IS YOURS.
EPC rating: C Council tax: G. Tenure: Freehold
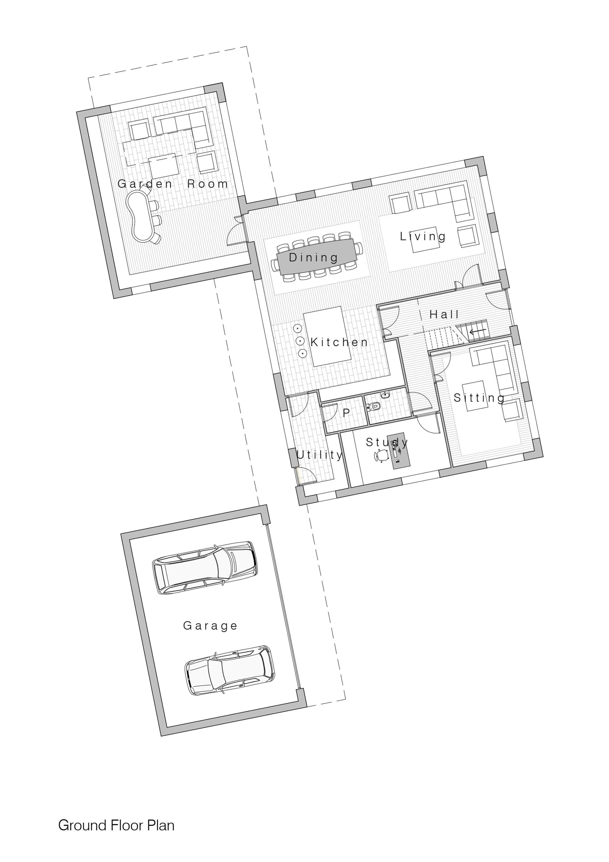
A timber door with high quality door furniture gives access to the entrance porch. This, with a beautiful stone flagged floor has a angled ceiling line and window to one side. There is also a bench seat to one side and fabulous timber and glazed door leading through to the inner hallway.
ENTRANCE HALLWAYThis is of a particularly good size, it has a very high ceiling height with beams and timbers on display. Once again, a continuation of the stunning stone-flagged flooring and the hallway also has a picture light point. It gains a lovely view via the glazed doors to the sitting room out over the gardens and fields to the rear of the property. A further timber door gives access to the downstairs WC.
DOWNSTAIRS WCThis has a continuation of the stone-flagged flooring, has a good-sized cloaks and storage cupboard, low level WC, pedestal wash handbasin, inset spot lighting to the ceiling and extractor fan.
SITTING ROOM27' 0" x 15' 6" (8.23m x 4.72m)
As the floor layout plan and photograph suggest, this is a particularly beautiful room. It enjoys a huge amount of natural light, courtesy of a number of windows and twin, glazed doors giving direct access out to the stone-flagged patio, gardens and field beyond. The room has inset spot lighting to the ceiling, particularly high skirting boards and last, but by no means least, has a fabulous, stone fireplace with a raised, stone hearth with a stone backcloth, stone cheeks and oak mantel. All is home for a cast-iron, wood-burning stove with glazed door.
17' 7" x 12' 6" (5.36m x 3.81m)
A beautiful, flexible room with wonderful panelling to the walls and exposed stone. There are beams and timbers on display to the ceiling, high quality, polished, timber-boarded floor and arched window giving a lovely view out over the property’s front, stone terrace, with views across the Holme Valley beyond. There is an attractive fireplace, once again, of carved, natural stone with a raised stone hearth, antique brick backcloth and with gas-fired stove. There is a period-style, central heating radiator. Across the hallway is a delightful study/home office.
11' 2" x 8' 6" (3.40m x 2.59m)
This has a window, giving a lovely view out over the property’s rear gardens, field and beyond. There are two ceiling light points. A doorway leads through to the dining kitchen.
18' 9" x 12' 3" (5.72m x 3.73m)
The dining kitchen, once again, is of a good size and has three windows affording a good amount of natural light and lovely views out over the property’s gardens, driveway and beyond. There are two fabulous beams to the ceiling, ceramic tiled flooring and a delightful range of high-quality units, these with granite working surfaces, have an inset twin-bowl, stainless steel sink unit with mixer tap over, integrated dishwasher, Belling, stainless steel and glazed-fronted range oven with hob over, broad extractor, integrated, further stainless steel and glazed-fronted ovens of NEFF manufacture. There is an island unit, once again with granite working surface and a cupboard is home for the gas-fired central heating boiler. The room has inset spot lighting to the ceiling and a doorway leads through to the utility room.
9' 6" x 7' 8" (2.90m x 2.34m)
This, with ceramic tiled flooring has units at both the high and low level, plumbing for an automatic washing machine, space for a dryer, extractor fan, inset spot lighting and provides a good amount of space.
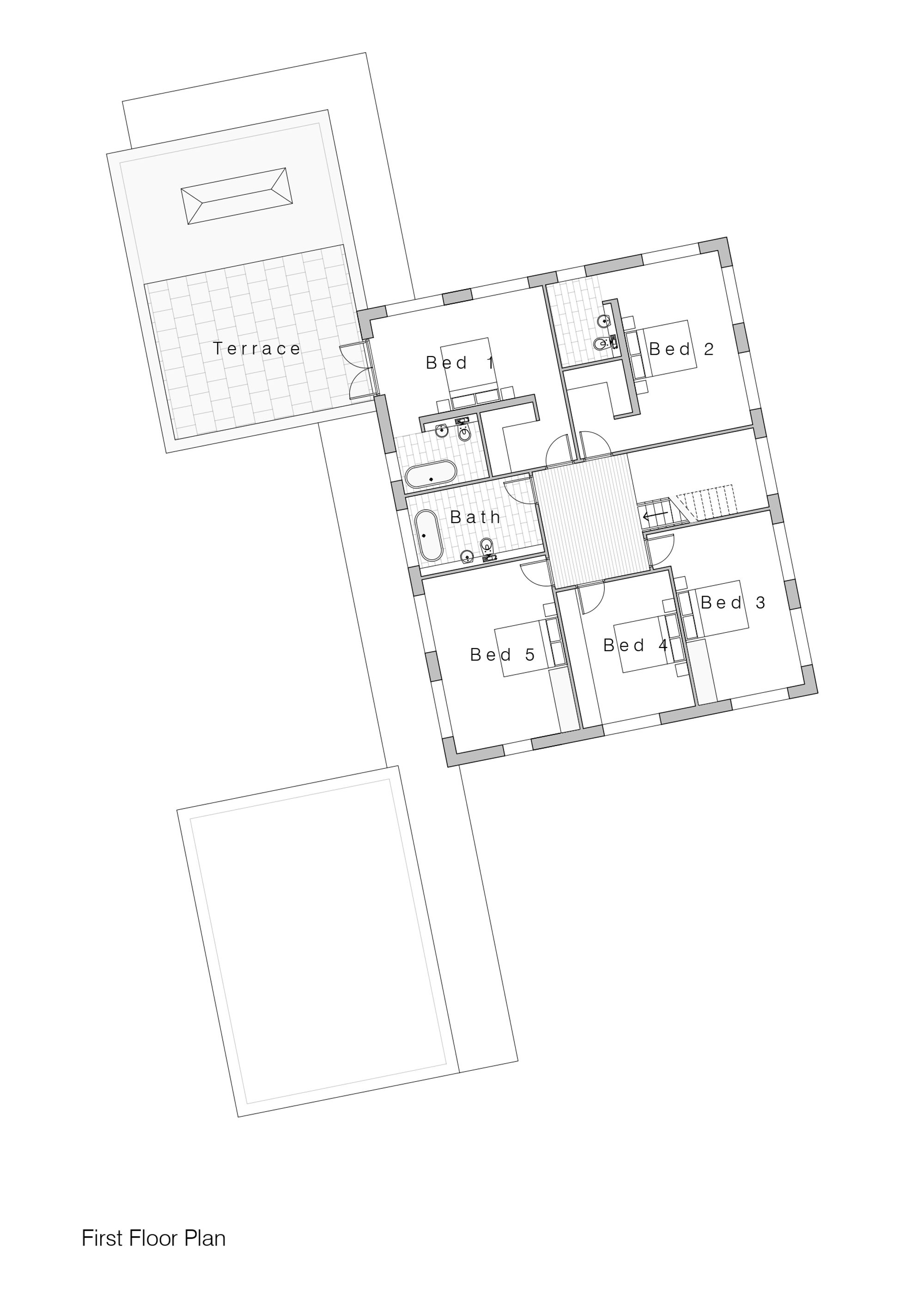
A staircase turns and rises to the very good-sized first-floor landing. This has a loft access point and has a feature window giving a stunning view out over the property’s gardens, driveway and has long distance views down the valley.
BEDROOM ONE17' 7" x 12' 8" (5.36m x 3.86m)
With a similar view, this beautiful, large, double bedroom has a bank of inbuilt robes, three windows enjoying the views and two wall light points.
13' 2" x 12' 0" (4.01m x 3.66m)
An en suited double bedroom with a window to the front and three wall light points.
The en suite is fitted with a low-level WC, pedestal wash handbasin and shower with glazed screen and chrome fittings, inset spot lighting to the ceiling and appropriate tiling.
BEDROOM THREE13' 4" x 11' 3" (4.06m x 3.43m)
Once again, and en suited double bedroom with a lovely outlook to the rear. The room has two wall light points.
Once again, and en suited double bedroom with a lovely outlook to the rear. The room has two wall light points.
BEDROOM FOUR8' 9" x 8' 8" (2.67m x 2.64m)
A pleasant, single room with two wall light points and window giving a lovely view out to the front.
8' 0" x 7' 5" (2.44m x 2.26m)
This, which is used primarily by bedroom one is of a good-size, has a period-style, cast-iron bath with period-style taps, low-level WC, pedestal wash handbasin, once again, of a period design, inset spot lighting to the ceiling and ceramic tiling to the half-height and good-sized storage cupboards.
Repayment calculator
Mortgage Advice Bureau works with Simon Blyth to provide their clients with expert mortgage and protection advice. Mortgage Advice Bureau has access to over 12,000 mortgages from 90+ lenders, so we can find the right mortgage to suit your individual needs. The expert advice we offer, combined with the volume of mortgages that we arrange, places us in a very strong position to ensure that our clients have access to the latest deals available and receive a first-class service. We will take care of everything and handle the whole application process, from explaining all your options and helping you select the right mortgage, to choosing the most suitable protection for you and your family.
Test
Borrowing amount calculator
Mortgage Advice Bureau works with Simon Blyth to provide their clients with expert mortgage and protection advice. Mortgage Advice Bureau has access to over 12,000 mortgages from 90+ lenders, so we can find the right mortgage to suit your individual needs. The expert advice we offer, combined with the volume of mortgages that we arrange, places us in a very strong position to ensure that our clients have access to the latest deals available and receive a first-class service. We will take care of everything and handle the whole application process, from explaining all your options and helping you select the right mortgage, to choosing the most suitable protection for you and your family.
How much can I borrow?
Use our mortgage borrowing calculator and discover how much money you could borrow. The calculator is free and easy to use, simply enter a few details to get an estimate of how much you could borrow. Please note this is only an estimate and can vary depending on the lender and your personal circumstances. To get a more accurate quote, we recommend speaking to one of our advisers who will be more than happy to help you.
Use our calculator below
