A MUCH-LOVED GRADE II LISTED FAMILY HOME IN A TRULY EXCEPTIONAL LOCATION BETWEEN THE VILLAGES OF NETHERTHONG AND WILSHAW, SAT WITHIN APPROXIMATELY 7.23 ACRES OF LAND AND HAVING BEAUTIFUL FORMAL GARDENS WHICH CAN BE AVAILABLE FOR LESS WITH LESS LAND. THE HOME COMPRISES OF A COMBINATION OF A DELIGHTFUL THREE-STOREY FARMHOUSE / COTTAGE AND A BEAUTIFUL PERIOD BARN CONVERTED INTO ONE MAGNIFICENT HOME. THE SPACE AND STYLE THROUGHOUT IS APPARENT AND TAKES FULL ADVANTAGE OF ITS POSITION WITH GOOD SIZE WINDOWS OVERLOOKING THE GARDENS AND BEYOND. WITH A DETACHED MODERN BARN HAVING CONSENT FOR FURTHER ACCOMMODATION, INCLUDING A SIGNIFICANT ANNEX OR EVEN SEPARATE DWELLING, THIS PROPERTY HAS THE FOLLOWING ACCOMMODATION; Exceptionally large lounge with feature windows and beautiful broad door, second sitting / family room with a view out to the valley side, magnificent living dining kitchen with windows to three sides, utility room, wine cellar, five bedrooms, two served by en- suites, bedroom one being a particularly large room, house bathroom, triple garage block, fabulous driveway and yard area, agricultural barn with significant potential and all offered in this lovely semi-rural position just out of the much admired village of Netherthong with its church, well-renowned school and other conveniences. Being superbly positioned between the townships of Holmfirth, Honley and Meltham, all other local facilities are close by. Tenure: Freehold Council tax banding: E
A timber and glazed door gives access through to an entrance lobby. This entrance lobby has a stone flagged floor and a period style door gives access to a downstairs WC. A further period door leads through to the fabulous farmhouse living/dining kitchen.
LIVING DINING KITCHEN29' 7" x 17' 10" (9.02m x 5.44m)
This as the photos and floor plan suggest is of a particular good size and has a superb flagged floor, beams and timbers on display and windows to three sides providing fabulous views out over the property’s gardens, driveway and land. With inset spot lighting, the whole room is presented to a particular high standard and has a sitting/family area to one corner with a beautiful arched top window. The kitchen units themselves are to be found to the high and low level and have a large amount of granite work surfaces. There is an inset Belfast sink with stylish mixer taps over, Aga with the usual warming hot plates in chrome and being of a two-oven design being powered by electric. There is an integrated Smeg oven and an integrated dishwasher. A doorway gives access to a pantry/cellar head. The cellar is of a particular good size and offers a great deal of potential if desired.
The dining area is as the photos suggest is presented to a high standard and as previously mentioned has beams and inset spotlighting to the ceiling. There is a delightful stone fireplace with a raised antique brick hearth and back cloth and all is home for an oil fired cast iron stove with glazed door. The mullion windows overlooking the gardens are particularly pleasing and have a window seat beneath. There are also period style central heating radiators. A broad opening leads through to the lounge.
LOUNGE30' 0" x 18' 10" (9.14m x 5.74m)
This once again is a fabulous room of huge proportions and is beautifully presented. This
highly characterful room has lovely views out over the properties gardens and super views out over the property’s fields and rural views beyond. Once again with period style central heating radiators, inset spotlighting to the ceiling. The room features a beautiful stone chimney breast reaching up to the full ceiling height. With fabulous stone flagged
hearth and all being home for a glazed fronted, solid fuel burning cast iron stove. With windows overlooking the gardens and in actual fact part of the former stone arch, the upper proportion being in the bedroom above, these provide a huge amount of natural light. A fabulous, exceptionally broad original style timber braced door with iron furniture with a stone archway leads through together to the family room.
26' 6" x 13' 9" (8.08m x 4.19m)
This with lower den/play area to one side is again a magnificent room overlooked from the first-floor landing via a minstrel style gallery. The room has a high angled and beamed ceiling line with exposed stonework, multiple windows at differing levels all providing a great deal of interest and style. The family room area has a beautifully polished timber bordered floor and library style book shelving with display plinth over. This continues to the den side where there is a home office area and bar. The room has inset spotlighting to the ceiling and two velux style windows.
9' 3" x 9' 2" (2.82m x 2.79m)
Off the entrance lobby there is a good size utility room being well equipped, having a large amount of working surfaces with stainless steel sink unit. Plumbing for an automatic washing machine, space for a dryer, cupboards to the high and low level and home for the property’s boiler. Stone flagged flooring, cloaks/hanging area and windows giving a super view.
A staircase of particular high quality rises up the partial galleried first floor landing and taking in full advantage of the high and angled beamed ceiling line. Feature window giving a pleasant view out over the property’s front gardens and Velux window.
BEDROOM ONE20' 7" x 18' 0" (6.27m x 5.49m)
An enormous double room with beautiful beams and timbers to the high angled ceiling. There is the upper portion of the barn arch providing three glazed panels with a further window above giving a super view out over the gardens. A further window giving a pleasant view out over the gardens and a gable window giving a super view out over one of the properties fields and view up the valley.
11' 5" x 7' 8" (3.48m x 2.34m)
Fitted to a high standard with a three piece suite in white which comprises of a low level w.c, pedestal wash hand basin, double ended bath and large shower cubicle with chrome fittings and an American style shower head.
Beamed ceiling with inset spotlighting, tiling where appropriate and extractor fan.
18' 3" x 11' 0" (5.56m x 3.35m)
A beautiful double room with fabulous views to both the front and rear, with window seats to both windows. High angled and beamed ceiling once again with inset spotlighting.
Finished to a stylish nature with twin wash hand basins, good sized shower cubicle with American style shower head, low level w.c, combination central heating radiator / heated towel rail. Further central heating radiator and mullion windows giving a super view out over the property’s gardens.
BEDROOM THREE18' 3" x 15' 2" (5.56m x 4.62m)
An astonishing room which could be considered suitable as a further sitting room due to the fact that there is a beautiful high angled and beamed ceiling. Windows to three sides giving tremendous views out over the property’s own land, neighbouring land and the valley scene beyond. The windows are quite incredible, there are a total of eleven mullioned windows all of which have window seats beneath. There is a fireplace for decorative purposes at this time being of cast iron and to a period design.
11' 8" x 11' 2" (3.56m x 3.40m)
Often used as a guest bedroom, this lovely double room has a bank of four mullion windows giving an outlook over the property’s gardens. There is a central ceiling light point and beam on display.
14' 8" x 10' 10" (4.47m x 3.30m)
This being closest to the bedroom to the principle bedroom has a bank of mullion
windows overlooking the property’s gardens and is once again of a double size. It has two beams.
11' 2" x 5' 10" (3.40m x 1.78m)
The property’s bathroom is fitted with a four piece suite in white and comprises of a good sized bath, pedestal wash hand basin, low level w.c and shower cubicle. There is appropriate decorative tiling, beam on display; Inset spotlighting and windows giving a super view.
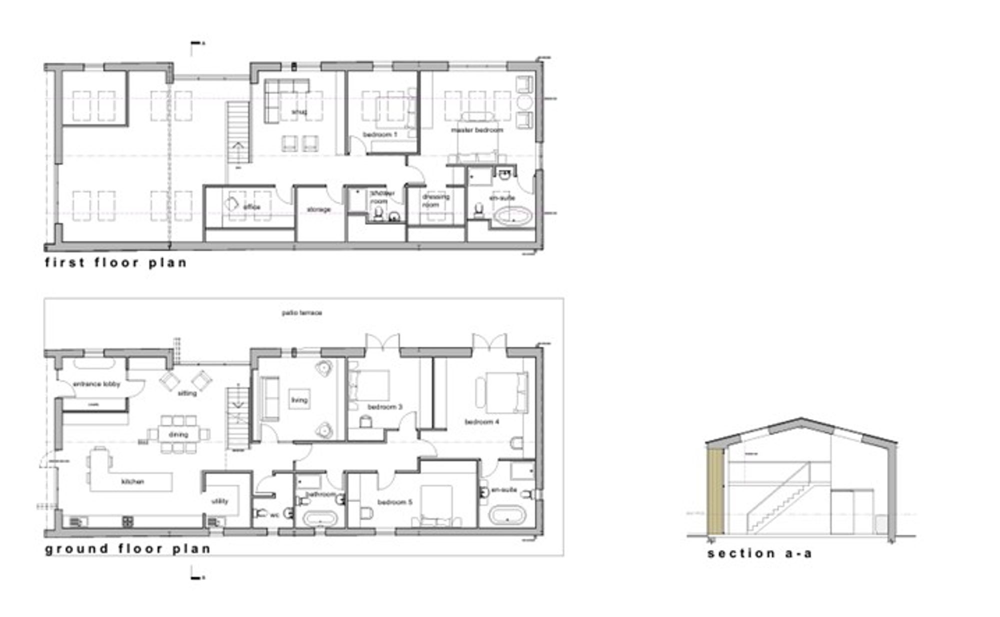
It should be noted that the barn offers a huge amount of flexibility and indeed planning consent has been granted for it to become further accommodation, i.e. usages of annex etc. The planning permission is granted for it to be a separate dwelling, but it is anticipated due to its location that it will always be used in conjunction with the house if so desired. The accommodation within this barn is shown on the plan within the brochure. It creates a two-storey dwelling, including double height living, dining, kitchen, off a generous sized entrance lobby, utility room, in a hallway, second sitting room, three ground floor double bedrooms and bathroom, one of the bedrooms served by an en-suite, two large first floor bedrooms, including bedroom one with dressing room and en-suite, first floor snug and home office.
THE BARN CONTINUEDThe plan demonstrates the barn’s potential and due to this planning consent we can be relatively relaxed in saying that the barn’s offers flexibility in its current guise or can be converted to create annexed accommodation or at the very most a separate dwelling if so desired (Application No 2025/62/92837/W)
LANDStanding in approximately 7.23 acres the home enjoys its own land from virtually every window. There are two large fields of high quality being gently sloping and with well-established boundaries and all are accessed internally. The driveway and the field have a public footpath over part of them and there is a lovely walk from here up and down the valley and into the local woods with Honley village being a short walk over the hillside. In other words the footpath provides one with idyllic walks into the countryside directly from this home.
Warning: Attempt to read property "rating" on null in /srv/users/simon-blyth/apps/simon-blyth/public/wp-content/themes/simon-blyth/property.php on line 314
Warning: Attempt to read property "report_url" on null in /srv/users/simon-blyth/apps/simon-blyth/public/wp-content/themes/simon-blyth/property.php on line 315
Repayment calculator
Mortgage Advice Bureau works with Simon Blyth to provide their clients with expert mortgage and protection advice. Mortgage Advice Bureau has access to over 12,000 mortgages from 90+ lenders, so we can find the right mortgage to suit your individual needs. The expert advice we offer, combined with the volume of mortgages that we arrange, places us in a very strong position to ensure that our clients have access to the latest deals available and receive a first-class service. We will take care of everything and handle the whole application process, from explaining all your options and helping you select the right mortgage, to choosing the most suitable protection for you and your family.
Test
Borrowing amount calculator
Mortgage Advice Bureau works with Simon Blyth to provide their clients with expert mortgage and protection advice. Mortgage Advice Bureau has access to over 12,000 mortgages from 90+ lenders, so we can find the right mortgage to suit your individual needs. The expert advice we offer, combined with the volume of mortgages that we arrange, places us in a very strong position to ensure that our clients have access to the latest deals available and receive a first-class service. We will take care of everything and handle the whole application process, from explaining all your options and helping you select the right mortgage, to choosing the most suitable protection for you and your family.
How much can I borrow?
Use our mortgage borrowing calculator and discover how much money you could borrow. The calculator is free and easy to use, simply enter a few details to get an estimate of how much you could borrow. Please note this is only an estimate and can vary depending on the lender and your personal circumstances. To get a more accurate quote, we recommend speaking to one of our advisers who will be more than happy to help you.
Use our calculator below
