OCCUPYING A PARTICULARLY GENEROUS PLOT, AND SITUATED IN THE SOUGHT AFTER VILLAGE OF HIGHBURTON IS THIS WELL MAINTAINED, DETACHED, TRUE BUNGALOW. WITH PLEASANT WALKS ON THE DOORSTEP, A SHORT DISTANCE TO THE VILLAGE AMENITIES AND THE NEIGHBOURING VILLAGE OF KIRKBURTON. THE PROPERTY IS OFFERED WITH NO ONWARD CHAIN AND FEATURES A DETACHED GARAGE, OPEN-PLAN LIVING/DINING ROOM, BEAUTIFUL MANICURED GARDENS TO THE FRONT AND REAR, AND SOLAR PANELS.
The property accommodation briefly comprises of breakfast kitchen, inner hallway, open-plan living/dining room, conservatory, two double bedrooms, the principal bedroom with an array of fitted furniture, and the bathroom. Externally there is a shared driveway leading to a detached garage, to the front is a flat lawn with mature flower and shrub beds and privacy hedging. To the rear is an impressive garden with flagged patio, lawn and pathways that meander through well stocked flower and shrub beds and with a hardstanding with space for two greenhouses. The property also benefits from solar panels.
Tenure Freehold. Council Tax Band C. EPC Rating C.
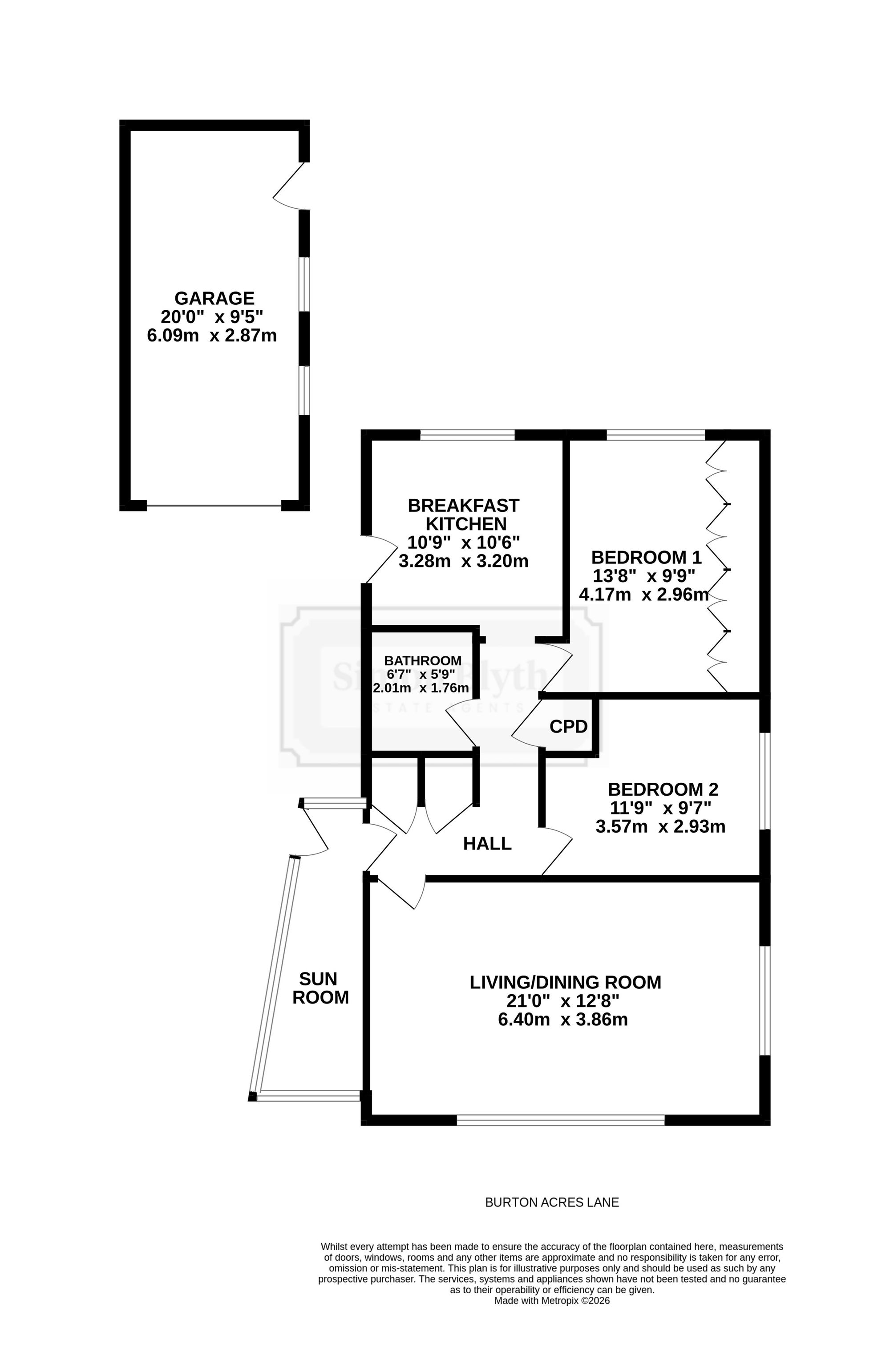
10' 9" x 10' 6" (3.28m x 3.20m)
Enter the property through a double-glazed composite front door with obscure and stained-glass inserts into the breakfast kitchen from the side elevation. The breakfast kitchen features exposed timber flooring, inset spotlights to the ceiling, a radiator, and a doorway leading into the inner hallway. There is a bank of double-glazed windows to the rear elevation with a tiled sill, which provides pleasant views across the property's gardens. The kitchen features a wide range of fitted wall and base units with shaker-style cupboard fronts and rolled-edge work surfaces over, incorporating a single-bowl stainless steel sink and drainer unit with a chrome mixer tap. The kitchen is equipped with space for a tall, freestanding fridge and freezer, plumbing for an automatic washing machine, and provision for a gas cooker with tiling to the splashback areas. There are glazed display cabinets with leaded detailing, display shelving, a breakfast bar for informal dining, and under-unit lighting.
The inner hallway features decorative coving to the ceiling, two ceiling light points, and a radiator. Multi-panelled doors provide access to the two bedrooms and the bathroom, as well as enclosing an airing cupboard, a cloaks cupboard, and a built-in cupboard with shelving for storage. A multi-panelled timber and glazed door leads to the open-plan living/dining room, and a timber and glazed door with obscure glazed inserts, with an adjoining window to the side elevation, leads to the conservatory/sun room.
CONSERVATORY/SUN ROOMThe conservatory provides a pleasant space for sitting out and enjoying the afternoon and evening sun, with banks of double-glazed windows featuring leaded detailing to the front, rear, and side elevations. There is also a double-glazed external door with leaded detailing to the side elevation, providing direct access to the driveway. The room also benefits from a ceiling light point and a radiator.
LIVING/DINING ROOM21' 0" x 12' 8" (6.40m x 3.86m)
As the photography suggests, the open-plan living/dining room is a generously proportioned, light and airy reception room which features dual-aspect banks of windows to both the front and side elevations. There is decorative coving to the ceilings, two ceiling light points, two radiators, and fabulous exposed timber flooring. The focal point of the room is the electric fireplace with an attractive tiled inset and hearth, and an ornate timber mantel surround. There are television and telephone points.
13' 8" x 9' 9" (4.17m x 2.97m)
Bedroom one is situated at the rear of the property and is a generously proportioned, light and airy double bedroom. It benefits from an array of fitted furniture, including floor-to-ceiling, wall-to-wall fitted wardrobes with hanging rails and shelving, a drawer unit, and a mirrored cupboard with space and provisions for a television. There is inset lighting, a radiator, decorative coving to the ceiling, and a central ceiling light point. A double-glazed bank of windows to the rear elevation provides a wealth of natural light, as well as fabulous views across the property's gardens.
11' 9" x 9' 7" (3.58m x 2.92m)
Bedroom two can accommodate a double bed with ample space for freestanding furniture. There is decorative coving to the ceiling, a ceiling light point, a radiator, and a bank of double-glazed windows to the side elevation.
6' 7" x 5' 9" (2.01m x 1.75m)
The bathroom features a modern white three-piece suite which comprises a low-level WC with push-button flush, a pedestal wash hand basin with a chrome monobloc mixer tap, and a panelled bath with a thermostatic shower over and a glazed shower guard. There are exposed timber floorboards, attractive tiling with a ceramic tiled dado rail to the walls, a ceiling light point, a chrome ladder-style radiator, and a double-glazed window with obscure glass to the side elevation.
20' 0" x 9' 5" (6.10m x 2.87m)
The garage features an up-and-over door, a bank of windows to the side elevation, as well as a door on the same side providing easy access from the rear garden.
Repayment calculator
Mortgage Advice Bureau works with Simon Blyth to provide their clients with expert mortgage and protection advice. Mortgage Advice Bureau has access to over 12,000 mortgages from 90+ lenders, so we can find the right mortgage to suit your individual needs. The expert advice we offer, combined with the volume of mortgages that we arrange, places us in a very strong position to ensure that our clients have access to the latest deals available and receive a first-class service. We will take care of everything and handle the whole application process, from explaining all your options and helping you select the right mortgage, to choosing the most suitable protection for you and your family.
Test
Borrowing amount calculator
Mortgage Advice Bureau works with Simon Blyth to provide their clients with expert mortgage and protection advice. Mortgage Advice Bureau has access to over 12,000 mortgages from 90+ lenders, so we can find the right mortgage to suit your individual needs. The expert advice we offer, combined with the volume of mortgages that we arrange, places us in a very strong position to ensure that our clients have access to the latest deals available and receive a first-class service. We will take care of everything and handle the whole application process, from explaining all your options and helping you select the right mortgage, to choosing the most suitable protection for you and your family.
How much can I borrow?
Use our mortgage borrowing calculator and discover how much money you could borrow. The calculator is free and easy to use, simply enter a few details to get an estimate of how much you could borrow. Please note this is only an estimate and can vary depending on the lender and your personal circumstances. To get a more accurate quote, we recommend speaking to one of our advisers who will be more than happy to help you.
Use our calculator below
