A generously proportioned double fronted five bedroom semi detached house with well planned interior ideal for expanding family.
The property is located within walking distance of Ofsted outstanding Moor End Academy, Beaumont park and a short drive from Huddersfield Town Centre.
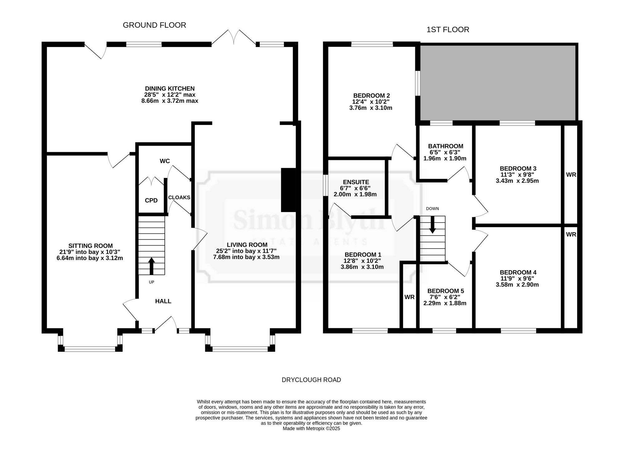
The accommodation is served by a gas central heating system, pvcu double glazing and briefly comprises to the ground floor, entrance hall, cloak room, downstairs WC, large living room and sitting room, 28 foot dining kitchen with French doors to the rear garden. First floor landing leading to master bedroom with en suite shower room, four further bedrooms and bathroom.
Externally there is an extensive block paved parking area to the front and garden to the rear with patio, lawn and garage sized garden store.
With composite and frosted double glazed door with frosted pvcu double glazed windows to either side and above, all of which provide this area with plenty of natural light. There is a ceiling light point, central heating radiator, laminate flooring and to one side a spindled staircase to the first floor. From the hallway access can be gained to the following..-
Cloak RoomThis is approached at the far end of the hallway and has ceiling light point, cloaks rail, laminate flooring and a door giving access to a downstairs WC.
Downstairs WC5' 5" x 4' 0" (1.65m x 1.22m)
With a ceiling light point, chrome ladder style heated towel rail, laminate flooring, storage cupboard beneath the stairs and fitted with a suite comprising corner hand wash basin with tiled splash back and low flush WC.
25' 2" x 11' 7" (7.67m x 3.53m)
As the dimensions indicate this is a particularly spacious reception room which has a walk in bay with pvcu double glazed windows looking out to the front, there are two ceiling light points, laminate flooring, two central heating radiators and as the main focal point of the room there is a fireplace with stone surround and home to a wood burning stove which rests on a stone hearth. To the rear of the living room, access can be gained to the dining kitchen.
28' 5" x 12' 2" (8.66m x 3.71m)
Once again as the dimensions indicate this is a spacious room which spans the full width of the property and has pvcu double glazed windows, French doors and composite stable style door giving access to the rear garden. There is also additional natural light from a pvcu glazed section of the roof. There are two ceiling fans, inset LED down lighters, low level LED lighting and having a range of white gloss shaker style base and wall cupboards, drawers, these are complimented by overlying granite worktops which extend to form sink with extending chrome monobloc tap, Leisure range cooker with five ring gas hob, hot plate and electric double oven and grill together with a matching extractor hood over, integrated microwave, housing for American style fridge freezer with under counter space for washing machine and tumble dryer. There is a Kickspace heater, cupboard housing a Worcester gas fired central heating boiler and to one side a door gives access into the sitting room.
21' 9" x 10' 3" (6.63m x 3.12m)
This is situated adjacent to the living room and has a walk in bay with pvcu double glazed windows, there are two ceiling lights, laminate flooring, central heating radiator and as the main focal point of the room there is a wall mounted flame effect electric fire.
With ceiling light point and loft access. From the landing access can be gained to the following rooms..-
Inner LandingWith central heating radiator, loft access ceiling light point. This gives access to bedroom one and two.
Bedroom One12' 8" x 10' 2" (3.86m x 3.10m)
A double room with pvcu double glazed window looking out to the front, there is a ceiling light point, central heating radiator and fitted floor to ceiling part mirror fronted sliding door wardrobe.
6' 6" x 6' 7" (1.98m x 2.01m)
With a frosted pvcu double glazed window, floor to ceiling tiled walls, chrome heated incorporating column radiator and fitted with a suite comprising pedestal wash basin, low flush WC and shower cubicle with chrome shower fitting incorporating fixed shower rose and separate hand spray.
12' 4" x 10' 2" (3.76m x 3.10m)
A double room with pvcu double glazed windows to two elevations looking out over the rear garden, ceiling light point, central heating radiator and fitted floor to ceiling sliding door wardrobe.
11' 3" x 9' 8" (3.43m x 2.95m)
A double room with pvcu double glazed window looking out over the rear garden, there is a ceiling light point, central heating radiator and to one wall there are a bank of fitted floor to ceiling sliding door wardrobes.
11' 9" x 9' 6" (3.58m x 2.90m)
A double room with pvcu double glazed window looking out to the front and enjoying some far reaching views, there is a ceiling light point, central heating radiator and to one wall there are a bank of fitted floor to ceiling sliding door mirror fronted wardrobes.
7' 6" x 6' 2" (2.29m x 1.88m)
With a pvcu double glazed window looking out to the front, there is a ceiling light point.
6' 4" x 6' 3" (1.93m x 1.91m)
This is in the process of having a new suite fitted and has a frosted pvcu double glazed window, ceiling light point, part tiled walls and fitted with panelled bath, pedestal wash basin and low flush WC.
Repayment calculator
Mortgage Advice Bureau works with Simon Blyth to provide their clients with expert mortgage and protection advice. Mortgage Advice Bureau has access to over 12,000 mortgages from 90+ lenders, so we can find the right mortgage to suit your individual needs. The expert advice we offer, combined with the volume of mortgages that we arrange, places us in a very strong position to ensure that our clients have access to the latest deals available and receive a first-class service. We will take care of everything and handle the whole application process, from explaining all your options and helping you select the right mortgage, to choosing the most suitable protection for you and your family.
Test
Borrowing amount calculator
Mortgage Advice Bureau works with Simon Blyth to provide their clients with expert mortgage and protection advice. Mortgage Advice Bureau has access to over 12,000 mortgages from 90+ lenders, so we can find the right mortgage to suit your individual needs. The expert advice we offer, combined with the volume of mortgages that we arrange, places us in a very strong position to ensure that our clients have access to the latest deals available and receive a first-class service. We will take care of everything and handle the whole application process, from explaining all your options and helping you select the right mortgage, to choosing the most suitable protection for you and your family.
How much can I borrow?
Use our mortgage borrowing calculator and discover how much money you could borrow. The calculator is free and easy to use, simply enter a few details to get an estimate of how much you could borrow. Please note this is only an estimate and can vary depending on the lender and your personal circumstances. To get a more accurate quote, we recommend speaking to one of our advisers who will be more than happy to help you.
Use our calculator below
