THIS TWO-BEDROOM END-TERRACE PROPERTY IS OFFERED TO THE MARKET WITH NO UPPER VENDOR CHAIN. BENEFITING FROM GENEROUS GARDENS TO THE REAR AND SIDE, THE HOME PRESENTS AN EXCELLENT OPPORTUNITY FOR FULL MODERNISATION, ALLOWING BUYERS TO CREATE AN IDEAL FAMILY RESIDENCE. ADDITIONAL FEATURES INCLUDE OFF-STREET PARKING AND CONVENIENT ACCESS TO BARNSLEY HOSPITAL, BARNSLEY TOWN CENTRE, AND KEY COMMUTER LINKS.
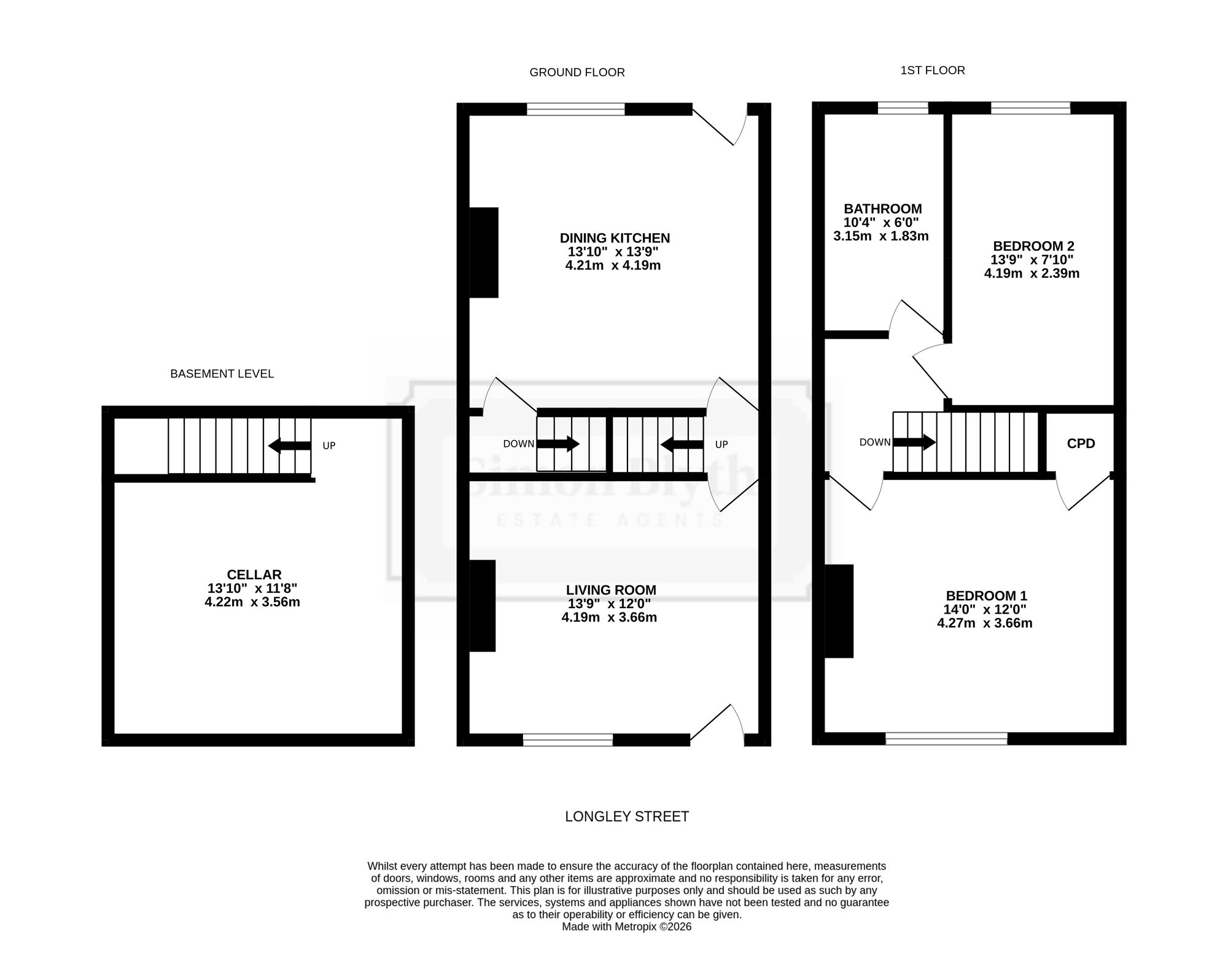
The property briefly comprises to ground floor: lounge, dining kitchen and access to the cellar. To the first floor there are two good size bedrooms and family bathroom. To the exterior there is a garden to the rear and off street parking to the front.
Entrance is gained via a wooden door with inset opaque glass panel with opaque glass pane above into the living room.
LOUNGEA well-proportioned front facing reception room with ceiling light, coving to the ceiling central heating radiator and uPVC double glazed window overlooking the front of the property. The main focal point of the room is the chimney breast with electric fire.
DINING KITCHENHaving a range of base and wall mounted units with integrated four ring electric hob, integrated grill oven, plumbing for a washing machine, stainless steel sink with chrome mixer tap over and space for further appliances. The room has two ceiling lights, central heating radiator, access to cellar, uPVC double glazed window and access to rear garden via wooden door with inset opaque glass panel.
BEDROOM ONEA spacious double bedroom with ceiling light, central heating radiator and uPVC double glazed window to the front of the property. There is also access to a storage cupboard which also provides access to the loft via a hatch.
BEDROOM TWOA further generously sized bedroom with ceiling light, coving to the ceiling, central heating radiator and uPVC double glazed window overlooking the rear of the property.
BATHROOMComprising of a three-piece sanitary suite in white in the form of; high flush W.C, pedestal hand basin with chrome mixer taps over and a bath with chrome mixer taps and electric shower over. There is a ceiling light, part tiling to walls, access to airing cupboard housing the water tank, central heating radiator and uPVC obscure glazed window.
CELLARSteps from the kitchen descend to the cellar, a spacious cellar with ample room for storage.
FIRST FLOOR LANDINGA staircase rises to the first-floor landing with ceiling light and a small wooden window overlooking the side of the property, from here we access the following rooms.
Warning: Attempt to read property "rating" on null in /srv/users/simon-blyth/apps/simon-blyth/public/wp-content/themes/simon-blyth/property.php on line 314
Warning: Attempt to read property "report_url" on null in /srv/users/simon-blyth/apps/simon-blyth/public/wp-content/themes/simon-blyth/property.php on line 315
Repayment calculator
Mortgage Advice Bureau works with Simon Blyth to provide their clients with expert mortgage and protection advice. Mortgage Advice Bureau has access to over 12,000 mortgages from 90+ lenders, so we can find the right mortgage to suit your individual needs. The expert advice we offer, combined with the volume of mortgages that we arrange, places us in a very strong position to ensure that our clients have access to the latest deals available and receive a first-class service. We will take care of everything and handle the whole application process, from explaining all your options and helping you select the right mortgage, to choosing the most suitable protection for you and your family.
Test
Borrowing amount calculator
Mortgage Advice Bureau works with Simon Blyth to provide their clients with expert mortgage and protection advice. Mortgage Advice Bureau has access to over 12,000 mortgages from 90+ lenders, so we can find the right mortgage to suit your individual needs. The expert advice we offer, combined with the volume of mortgages that we arrange, places us in a very strong position to ensure that our clients have access to the latest deals available and receive a first-class service. We will take care of everything and handle the whole application process, from explaining all your options and helping you select the right mortgage, to choosing the most suitable protection for you and your family.
How much can I borrow?
Use our mortgage borrowing calculator and discover how much money you could borrow. The calculator is free and easy to use, simply enter a few details to get an estimate of how much you could borrow. Please note this is only an estimate and can vary depending on the lender and your personal circumstances. To get a more accurate quote, we recommend speaking to one of our advisers who will be more than happy to help you.
Use our calculator below
