BEAUTIFULLY POSITIONED WITH A DELIGHTFUL, WOODLAND OUTLOOK AND WITH LANDSCAPED, REAR GARDENS. THIS FOUR BEDROOMED, DETACHED FAMILY HOME HAS BEEN SUPERBLY UPDATED IN RECENT TIMES WITH A FABULOUS DINING LIVING KITCHEN THAT HAS BI-FOLDING DOORS OVERLOOKING AND GIVING DIRECT ACCESS OUT TO THE LANDSCAPED GARDENS. THE HOME HAS A HIGH SPECIFICATION THROUGHOUT AND BRIEFLY COMPRISES ENTRANCE HALL, DOWNSTAIRS W.C., LOUNGE WITH BAY WINDOW GIVING AN OUTLOOK TO THE FRONT, A SUPERB LIVING, DINING, KITCHEN WITH HIGH QUALITY FITTINGS, UTILITY CUPBOARD, FIRST FLOOR LANDING, FOUR BEDROOMS AND HOUSE BATHROOM. OCCUPYING A CORNER POSITION AND BEING WELL POSITIONED FOR ATTRACTIVE WALKS, THIS HOME IS ALSO SUPERBLY LOCATED FOR THE COMMUTER BOTH INTO THE CITY BUT ALSO ONTO THE MOTORWAY NETWORK. FOR THOSE WHO SEEK A HIGH SPECIFICATION DETACHED FOUR BEDROOM HOME AT A VERY COMPETITIVE PRICE THIS HOUSE SHOULD BE VIEWED WITHOUT DELAY.
An attractive stone porch gives shelter to the high-quality entrance door with attractive door furniture. This leads through to the entrance hallway. As the photography suggests, it is a particularly stylish hallway. There is a window giving a pleasant outlook to the side, attractive flooring, inset spotlighting to the ceiling and a useful cloaks storage cupboard. An attractive door gives access to the downstairs W.C.
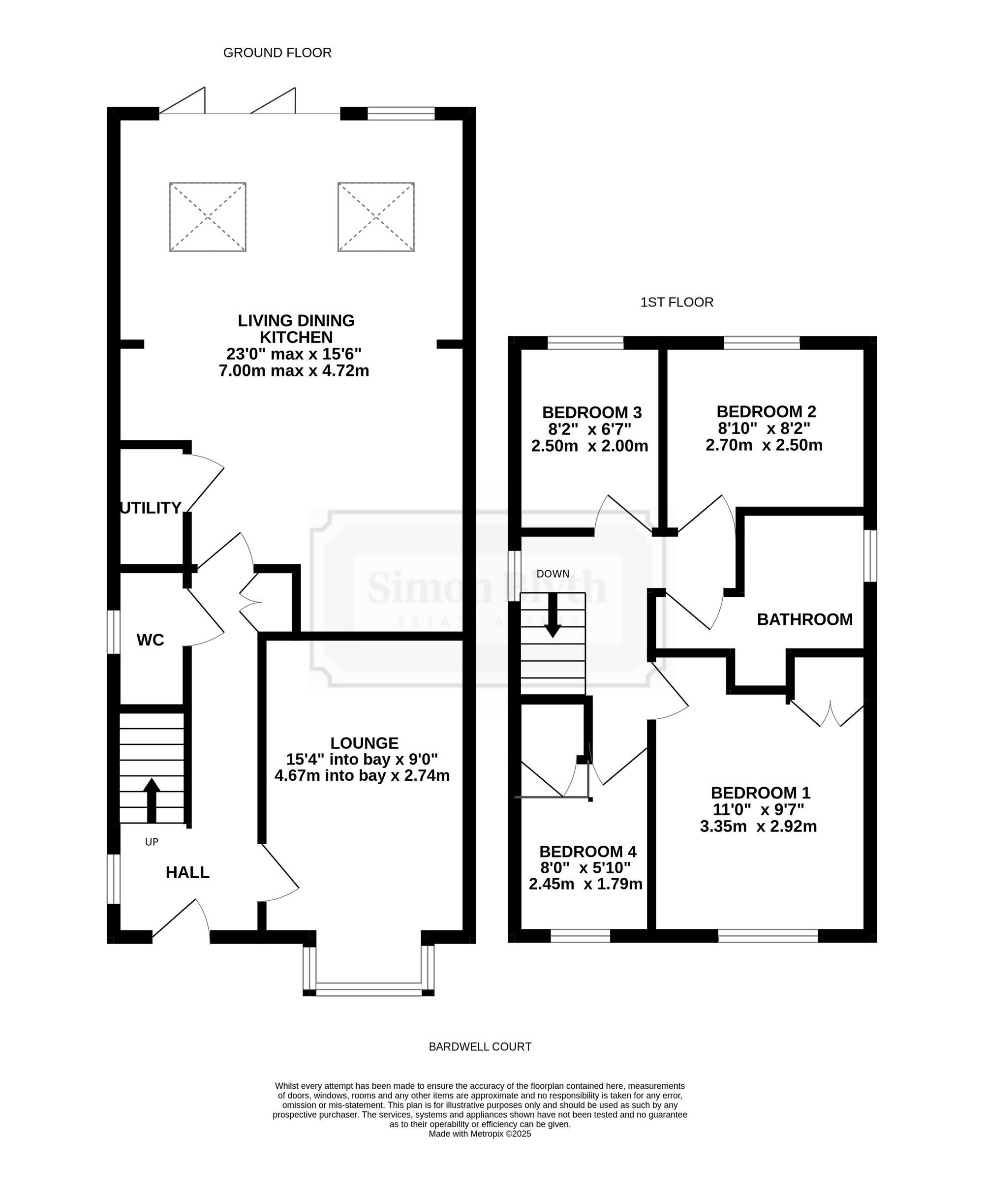
DOWNSTAIRS W.C.With a continuation of the flooring, the downstairs W.C. includes a combination chrome central heating radiator with heated towel rail, low level W.C. from Roca and wash hand basin with storage cupboard beneath. There is an obscured glazed window and inset spotlighting to the ceiling.
LOUNGE15' 4" x 9' 0" (4.67m x 2.74m)
A stylish glazed door leads to the lounge. This room has a broad bay window which gives a lovely view out to the enclosed front garden areas and provides a large amount of natural lighting into the room. There is a central ceiling light point coved into the ceiling, attractive décor and provisions for a wall mounted TV.
23' 0" x 15' 6" (7.00m x 4.72m)
A similar stylish door leads to the living dining kitchen. This is perhaps best demonstrated by the combination of the photographs and the floor layout plan. It is a particularly large room and has a wonderful view out over the enclosed landscape garden, courtesy of a window but also a bank of three bi-folding doors which provide direct access out to the gardens. The room has been superbly fitted to an exceptionally high standard with the usage of lighting being particularly good. There is inset spotlighting, under unit lighting and a chandelier point above the island unit with Velux windows to the sloping roof to the garden side. The room has beautiful flooring, a stylish vertical central heating radiator along with other central heating radiators. There is provisions for a wall mounted TV, two good sized Velux windows and the kitchen units themselves are particularly stylish.
The units incorporate a large fridge freezer, Neff stainless steel glazed fronted oven in addition to a Neff stainless steel glazed fronted combination oven/microwave. The kitchen also includes a larder style cupboard with shelving, wine fridge, integrated dishwasher, inset one and a half bowl sink unit within the fabulous working surface, cooker tap, pop up power sockets and an induction hob within the island unit which includes large soft close doors and seating for four/five persons.
UTILITY CUPBOARDThis is of a good size and has plumbing for an automatic washing machine, working surfaces and is home for the property’s wall mounted gas fired central heating boiler.
FIRST FLOOR FIRST FLOOR LANDINGStaircase rises up to the first-floor level this has a window giving an outlook to the side, a loft access point, coving to the ceiling and a central ceiling light point. A doorway leads through to bedroom one.
BEDROOM ONE11' 0" x 9' 7" (3.35m x 2.92m)
Bedroom one is a lovely double room with a broad window providing a good amount of natural light with an outlook to the front. There’s coving to the ceiling once again and a bank of inbuilt wardrobes.
8' 10" x 8' 2" (2.70m x 2.50m)
Once again, bedroom two is a lovely, good sized room with a delightful outlook onto the properties rear garden and woodland scene beyond. The room has coving to the ceiling, a ceiling light point and high-quality décor.
8' 2" x 6' 7" (2.50m x 2.00m)
Bedroom three is currently utilised as a nursery. This single bedroom has a pleasant view out over the properties rear garden and woodland scene beyond and a ceiling light point.
8' 0" x 5' 10" (2.45m x 1.79m)
Bedroom four is a single room, this is currently used as a home office / study. A window gives outlook to the front, cushion plinth and high-level wardrobes stroke storage cupboards, attractive flooring and ceiling light point.
The property’s bathroom, as the photography suggests, is superbly presented and is particularly well laid out. There is a good height storage cupboard, a vanity unit with inset wash hand basin and good size drawers beneath with mirrored and tiled splash back. There is a low-level W.C., bath with glazed shower screen and an attractive shower fittings above. The bathroom also includes an obscured glazed window, an extractor fan, inset spotlighting and a very stylish chrome heated towel rail.
Warning: Attempt to read property "rating" on null in /srv/users/simon-blyth/apps/simon-blyth/public/wp-content/themes/simon-blyth/property.php on line 314
Warning: Attempt to read property "report_url" on null in /srv/users/simon-blyth/apps/simon-blyth/public/wp-content/themes/simon-blyth/property.php on line 315
Repayment calculator
Mortgage Advice Bureau works with Simon Blyth to provide their clients with expert mortgage and protection advice. Mortgage Advice Bureau has access to over 12,000 mortgages from 90+ lenders, so we can find the right mortgage to suit your individual needs. The expert advice we offer, combined with the volume of mortgages that we arrange, places us in a very strong position to ensure that our clients have access to the latest deals available and receive a first-class service. We will take care of everything and handle the whole application process, from explaining all your options and helping you select the right mortgage, to choosing the most suitable protection for you and your family.
Test
Borrowing amount calculator
Mortgage Advice Bureau works with Simon Blyth to provide their clients with expert mortgage and protection advice. Mortgage Advice Bureau has access to over 12,000 mortgages from 90+ lenders, so we can find the right mortgage to suit your individual needs. The expert advice we offer, combined with the volume of mortgages that we arrange, places us in a very strong position to ensure that our clients have access to the latest deals available and receive a first-class service. We will take care of everything and handle the whole application process, from explaining all your options and helping you select the right mortgage, to choosing the most suitable protection for you and your family.
How much can I borrow?
Use our mortgage borrowing calculator and discover how much money you could borrow. The calculator is free and easy to use, simply enter a few details to get an estimate of how much you could borrow. Please note this is only an estimate and can vary depending on the lender and your personal circumstances. To get a more accurate quote, we recommend speaking to one of our advisers who will be more than happy to help you.
Use our calculator below
