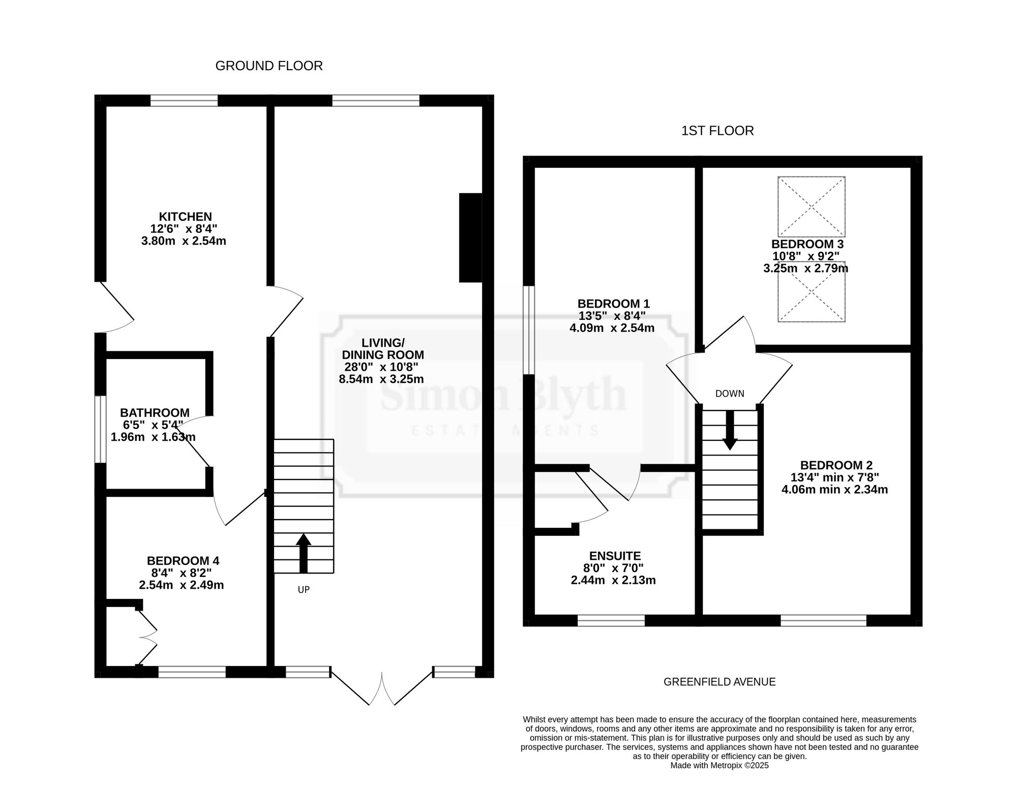
Situated at the head of the Cul De Sac, a four bedroomed semi-detached house with bedrooms to both ground and first floor.
The property is ideal for a family and is located within a popular residential area close to good schools and shopping facilities in neighbouring Lindley and Salendine Nook.
The accommodation is served by a gas central heating system, PVCU double glazing and briefly comprises to the ground floor, kitchen, 28” living/ dining room, inner hallway leading to bedroom 4 and bathroom, first floor landing, 3 further bedrooms with en-suite bathroom to the master. Externally a driveway provides off road parking together with gardens laid out to the front and rear.
12' 6" x 8' 4" (3.81m x 2.54m)
This has pvcu and frosted double glazed door to the side with frosted pvcu double glazed window over, there is a pvcu double glazed window to the front elevation which takes advantage of some lovely far-reaching views. The kitchen is fitted with a range of cream base and wall cupboards, drawers, contrasting overlying timber effect worktops with tiled splashbacks, inset one and a half bowl single drainer stainless steel sink with chrome mixer tap, four ring halogen hob with extractor hood over and stainless steel and smoke glass electric double oven beneath, housing for fridge freezer, under counter space for appliances and conceals lighting beneath the wall cupboards together with pelmet lighting over the sink. There is central heating radiator, laminate flooring and from the kitchen access can be gained to the following: -
28' 0" x 10' 8" (8.53m x 3.25m)
As the dimensions indicate this is a particularly generous reception room which has a large pvcu double glazed window to the front elevation with far reaching views together with pvcu double glazed windows and French doors to the rear all of which provide plenty of natural light. There are two ceiling light points, two wall light points, two central heating radiators and as the main focal point of the room there is a fireplace with marble surround and home to a flame effect electric fire which rests on a marble hearth. To one side a spindle staircase rises to the first floor.
This is accessed from the kitchen and has ceiling light point, laminate flooring and gives access to bedroom number four and bathroom.
BEDROOM FOUR8' 2" x 8' 4" (2.49m x 2.54m)
With PVCU double glazed window looking out over the rear garden, there is a central heating radiator, laminate flooring and fitted floor to ceiling wardrobe together with a cupboard.
6' 5" x 5' 4" (1.96m x 1.63m)
With a frosted pvcu double glazed window, ceiling light point, extractor fan, part tiled walls, tiled floor, chrome ladder style heated towel rail and fitted with a suite comprising bath with Mira electric showing fitting over, vanity unit incorporating wash basin and low flush WC.
With ceiling light point. From here access can be gained to the following rooms: -
BEDROOM THREE10' 8" x 9' 2" (3.25m x 2.79m)
This has a mono pitched roof which incorporates two Velux double glazed windows, ceiling light point and central heating radiator.
13' 4" x 7' 8" (4.06m x 2.34m)
A double room with pvcu double glazed window looking out over the rear garden, there is a ceiling light point, central heating radiator and some useful storage over the bulkhead.
13' 5" x 8' 4" (4.09m x 2.54m)
A double room with pvcu double glazed window to the gable with views stretching across to Castle Hill. There is ceiling light point, central heating radiator and at one end a door gives access to an en-suite bathroom.
8' 0" x 7' 0" (2.44m x 2.13m)
With a frosted PVCU double glazed window, inset LED downlighters, extractor fan, floor to ceiling tiled walls, tile effect flooring, cupboard which houses a gas fired central heating boiler and fitted with a suite comprising double ended panelled bath with glazed shower screen and together with a fixed shower rose and separate hand spray, wall hung vanity unit incorporating wash basin with chrome mono-block tap and low flush WC.
Repayment calculator
Mortgage Advice Bureau works with Simon Blyth to provide their clients with expert mortgage and protection advice. Mortgage Advice Bureau has access to over 12,000 mortgages from 90+ lenders, so we can find the right mortgage to suit your individual needs. The expert advice we offer, combined with the volume of mortgages that we arrange, places us in a very strong position to ensure that our clients have access to the latest deals available and receive a first-class service. We will take care of everything and handle the whole application process, from explaining all your options and helping you select the right mortgage, to choosing the most suitable protection for you and your family.
Test
Borrowing amount calculator
Mortgage Advice Bureau works with Simon Blyth to provide their clients with expert mortgage and protection advice. Mortgage Advice Bureau has access to over 12,000 mortgages from 90+ lenders, so we can find the right mortgage to suit your individual needs. The expert advice we offer, combined with the volume of mortgages that we arrange, places us in a very strong position to ensure that our clients have access to the latest deals available and receive a first-class service. We will take care of everything and handle the whole application process, from explaining all your options and helping you select the right mortgage, to choosing the most suitable protection for you and your family.
How much can I borrow?
Use our mortgage borrowing calculator and discover how much money you could borrow. The calculator is free and easy to use, simply enter a few details to get an estimate of how much you could borrow. Please note this is only an estimate and can vary depending on the lender and your personal circumstances. To get a more accurate quote, we recommend speaking to one of our advisers who will be more than happy to help you.
Use our calculator below
